Namas. Paniręs į gamtą

Vieta: Kibučiai, Žiežmarių apyl. sen., Kaišiadorių r. sav.
Statusas: Projektiniai pasiūlymai
Autorius: Aistis Stalaučinskas

Sustoti, įkvėpti gryno oro, išgirsti, kaip kurkia varlės kūmutės, panirti į gamtą ir sugrįžti į savo šaknis…  Šis projektas sukurtas žmonėms, kurie ieško ryšio su aplinka, sugrįžę iš užsienio kuria ramų gyvenimą tėviškėje. Todėl savo namų projektui išsirinko sklypą, greta kurio telkšo pelkė, krūmynuose gyvena gausybė paukščių, o kemsynuose namus atrado Europoje saugoma varlių kūmučių rūšis. Namo stogui parinkta veja pratęsią žalią gamtinę aplinką, o fasadų medžiaga – termomediena susilieja su pilkšvais Žiežmarių apylinkių laukų peizažais šaltuoju metų laiku. Taip grįžtama į darną, pirmapradį ryšį su savimi, kitais ir kūrinija, taip kuriamas naujas gyvenimas, ilsintis nuo civilizacijos įtampos, streso ir lekiančios kasdienybės.

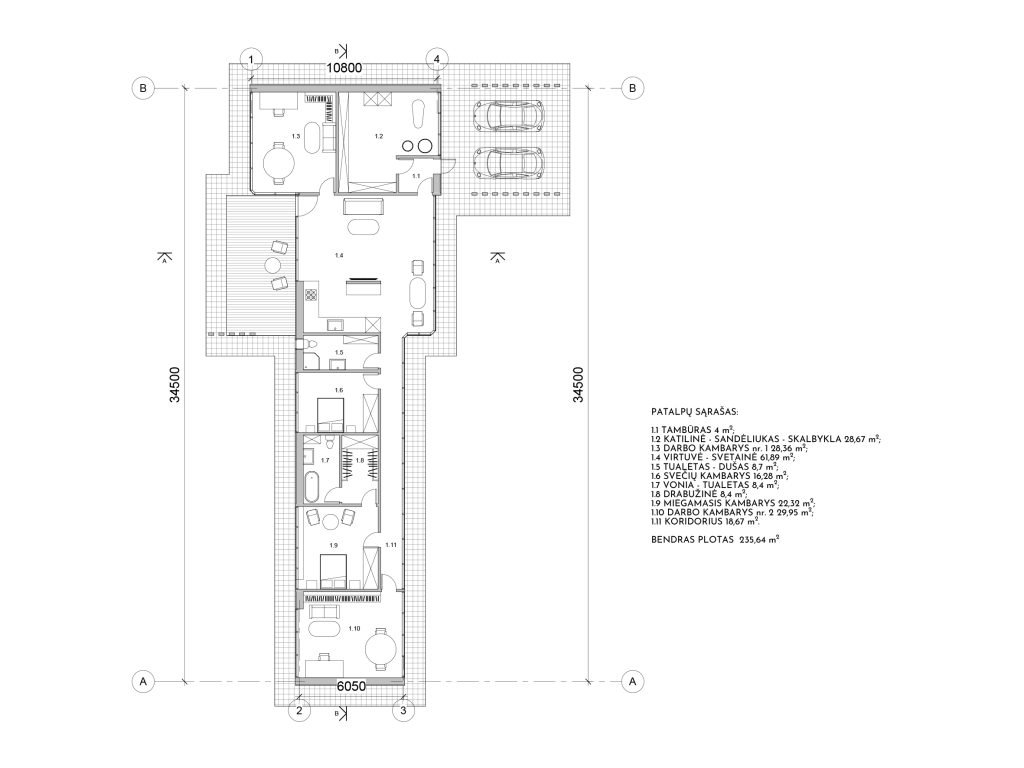
Planinė – funkcinė struktūra pritaikyta ramiam gyvenimui kaime, naudojantis visais civilizacijos privalumais ir dirbant iš namų. Šiaurinėje namo dalyje – automobilių stoginė, techninės patalpos ir darbo kambarys. Namo širdis – svetainė – virtuvė su terasa, nuo kurios atsiveria laukų ir miškų peizažai, o tolumoje matosi stirnų pulkeliai ar girių karaliai briedžiai, išbėgę pasidairyti po laukus ir paskanauti želmenėlių. Gamtinė aplinka yra pagrindinė interjero puošmena, kurios stebėjimu paremtas gyvenimas šiuose namuose. Kambariai išdėstyti pietinėje dalyje, į juos veda galerija, kur bus eksponuojami šeimininkams svarbūs meno kūriniai. Šis namas sukurtas ieškant žmogaus ir gamtos simfonijos.